
Eladó:
 |
LUXUSINGATLAN ORG
+36 (20) 235 0250 uzenetkuldes @ proton.me |
|
Ingatlan adatok:
| Ár: | 0 Ft
(0 €) |
| Elhelyezkedés: | Budapest II. kerület |
| Tranzakció típusa: | Eladó |
| Ingatlan típusa: | Lakás / Tégla |
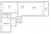
| Alapterület: | 63 m2 | | Szobaszám: | 2 | | Komfort: | Összkomfortos | | Emelet: | 3. emelet | | Lift: | Van | | Fűtés: | Házközponti fűtés egyedi méréssel | | Erkély mérete: | 4 m2 |
|
IDE CSAK BEKÖLTÖZNI KELL!
Budapest II. kerületben Rózsadomb lábánál eladó egy 1955-ös téglaépítésű, 3. emeleti 63 nm-es, 2 szobás, amerikai konyhás, mosókonyha-kamrás, belső udvaros, erkélyes, liftes társasházi lakás.
A parkos, hamisítatlan budai környezet, belvárosi szolgáltatásokat rejt magában. Legyen szó egy finom reggeliről, számtalan sportolási, regenerálódási, szórakozási, bevásárlási lehetőségről, mind a közelben elérhető, akár a kiváló tömegközlekedés igénybe vétele nélkül is.
A pár éve történt teljes körű felújítás alkalmával megújult a lakás teljes víz és villany hálózata, a burkolatok, szaniterek, a falak repedésmentesítő bevonatot kaptak.
A műanyag, redőnnyel,szúnyoghálóval felszerelt nyílászárók kint tartják a nagy nyári meleget, nem kívánatos repülő lényeket.
A klíma előkészítéssel további lehetőség nyílik a maximális komfort megteremtésére. A biztonságos környék és lépcsőház dacára a riasztórendszer előkészítés befejezésével fokozható a biztonságérzet.
Az ablakos fürdő tökéletes kikapcsolódást nyújt. A konyha a nappali részeként elmenthető a kedvencek közé. A konyhai folyamatok figyelembe vételével került kialakításra, a tökéletes végeredményt a magas minőségű AEG típusú berendezések (hűtőszekrény, indukciós főzőlap, sütő, mosogatógép ) maximálisan támogatják.
Egyedileg tervezett bútorok letisztult forma és színvilága a megfelelő kiegészítőkkel, a nagybetűs OTTHON érzést garantálhatja.
A fűtés 14.000/hó, közös ktg. 12.000/hó, mely magába foglalja a szemétszállítás, takarítás, kertrendezés, társasházi biztosítás, felújítási alap díját.
Tömegközlekedés:
HÉV, Villamos, Busz
Infrastruktúra 500m-en belül:
Iskola, Óvoda, Bölcsöde, Posta, Élelmiszerbolt, Orvosi rendelő, Játszótér, Zöld park